セミ多段ケース

日配 H=1250


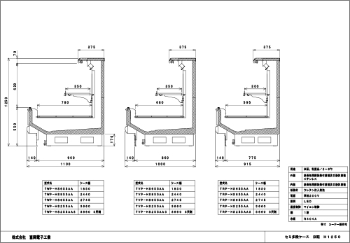
日配・乳製品陳列用途、棚1段、ケース高さ1250mmの冷凍機別置型ショーケースです。
ケース幅:1830mm(6尺)/2440mm(8尺)/2745mm(9尺)/3660mm(12尺)(店舗レイアウトにあった特寸にも対応致します。)
ケース奥行:1100mm/1000mm/915mm
フロント高さ:350mm/450mm/550mm
日配、乳製品/2~8℃

店舗内の見通しを良くし、余裕のある空間を生み出すレイアウトが可能です。庫内背面吐出を改善し、エアカーテンによる外気遮断、庫内冷却の最適化を実現。ケースのスッキリとしたデザインとLED照明により、商品を引き立てます。

【標準装備品】
ショーケース制御機器/LED照明/棚ガード(ガラス)/ドレントラップ/電磁弁・ストレーナー/機械式膨張弁

【オプション】
POPレール/吸入口ガード/プライスレール/天井コンセント/ナイトカバー/側板等

用途
日配、乳製品/2~8℃
外装
表面処理鋼板焼付塗装及び紛体塗装ステンレス
内装
表面処理鋼板焼付塗装及び粉体塗装
断熱材
ウレタン注入発泡
電源
単相200V
照明
LED
温度制御
マイコン制御
4段
冷媒
R404A

※特寸製作可能

セミ多段ケース 一覧へ戻る